Никаких затяжных строек! Профессиональное оборудование и наработанный опыт позволяют нам строить быстро.
Проект В271
от 16 260 000 ₽
В СТОИМОСТЬ ВХОДИТ КОМПЛЕКТАЦИЯ «ТЕПЛЫЙ КОНТУР»:
- фундамент;
- несущие стены;
- перегородки;
- окна;
- кровля с утеплением.
- Характеристики
| Характеристики | |
| Тип дома | Блочный |
| Тип материала | Газоблок толщиной 375мм |
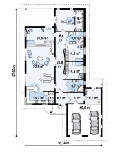
| Площадь дома (м2) | 271 |
| Габариты дома | 16.7х27.7 |
| Количество этажей | 2 |
| Фундамент | монолитная плита |
| Материал стен | Газоблок толщиной 375мм |
| Перекрытие | деревянные балки |
| Кровля | металлочерепица |
| Гараж | на 2 авто |
| Количество спален | 4 |
Строим дом от 2-х до 4х месяцев
Поэтапная оплата
Вы можете оплачивать строительство шаг за шагом. На каждый этап заключается свой договор.
Фиксированная стоимость
Не стоит переживать по поводу курсов валют. Все работы будут стоить согласно сметы.
Строим зимой и летом
Не надо ждать наступления тепла. Мы обладаем технологиями для зимнего строительства.
Есть ипотека
Мы аккредитованы во всех ведущих банках, вы можете оформить строительство у нас в ипотеку.
Помогаем с выботром участка
Производим геологию участка и поможем найти подходящий под ваши требования.
Помогаем оформить документы
Чтобы вы не тратили много усилий, после стройки дома поможем правильно оформить его в собственность.
Даём гарантию 5 лет
У вас будет официальная гарантия на дом по договору.
Ждем Вас у себя в офисе
для обсуждения деталей проекта!
